Blatt schneiden icon

Blatt schneiden

14.3 for Android
3.4 | 100,000+ Installationen

Avdeev Andrey

⚠️ You need 9Apps App to install .XAPK File. How to install XAPK?

Die Beschreibung von Blatt schneiden

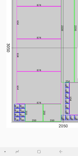
Die Anwendung zahltdie Anzahl der Materialblätter, die für die Herstellung einer bestimmten
Anzahl rechteckiger Teile erforderlich sind, und zeigt die Verschachtelungskarte.
Die Anwendung zählt:
- die Anzahl der Blätter für das Projekt;
- materielle Nutzung;
- der Umfang aller Teile;
- die Fläche aller Teile;
Die App ist nützlich für:
- Hersteller von Möbeln, Metallwaren, Kunststoffwaren, Glas und anderen Dingen;
- Bediener von Formatschneidemaschinen (Plattensäge, Altendorf);
- CNC-Maschinenbediener;
- diejenigen, die an der Berechnung der Produktionskosten von Produkten aus
Plattenmaterialien beteiligt sind;
Sie können den Zuschnitt von Materialien wie laminierte Spanplatten, MDF, Kunststoff,
Metall, Karton, Glas und andere berechnen.
Der Schneidealgorithmus ist automatisch und für das Schneiden auf
Formatschneidemaschinen optimiert.

Neue Funktionen Blatt schneiden 14.3

Fehlerkorrektur

Informationen

  • Kategorie:
    Tools
  • Aktuelle Version:
    14.3
  • Aktualisiert:
    2021-02-10
  • Größe:
    5.0MB
  • Anforderungen:
    Android 6.0 or later
  • Entwickler:
    Avdeev Andrey
  • ID:
    com.raskroy2
  • Available on: